星聯大廈辦公裝修工程
| 項目名稱 | 星聯大廈辦公裝修工程 | 行業屬性 | 互聯網/電商/科技 |
| 項目地址 | 長沙市天心區書院南路309號 | 項目造價 | 46.49萬 |
| 主關鍵詞 |
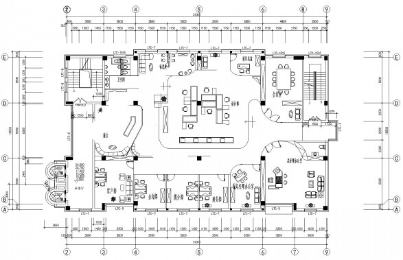
▄原建筑結構分析: 甲方的辦公空間需要的功能區域包括前臺接待區、公共辦公區、會議室、總經理辦公室、走廊、茶水間、綜合辦公室、財務室、洽談室等。我們的設計師據此完成了平面布置圖和一系列的施工圖。
▄設計需求: 要考慮怎么打造與建筑呼應的內部空間和怎樣的空間氣質可以展現企業文化,體現企業精神。使辦公空間可以獨具魅力,獨具特色,在功能之上具有設計感和藝術感。打造全新人才,人性辦公環境,平衡在效果,效益,效率之間恰到好處把握一種和諧平衡
▄設計風格定位: 現代型的辦公室裝修傾向于使用流暢的線條,并且利用綠植來增加空間的生命力,互聯網公司這樣從事高端行業的公司適合現代性的裝修。風格設計上以現代前衛時尚為主,顏色要求明亮,部分區域色彩鮮艷強調空間的動感,選材上考慮可以組合多變及色彩明亮的地毯 。


北京鑄誠大廈辦公裝修工程
北京銀河SOHO辦公裝修工程
301醫院裝修工程
